Se tegningerne til det nye klubhus
Om lige knap et år kan alle spillere, trænere og ledere i AGF tage et topmoderne klubhhus i brug. Den 1. april 2018 skal de nye rammer stå klar, og som det kunne læses her på siden i går, er byggearbejdet godt i gang.
De nye faciliteter bliver på i alt 1787 m2, hvilket er 1/3 større end det gamle klubhus. En afdeling med akademiboliger vil blive opført i etape 2.
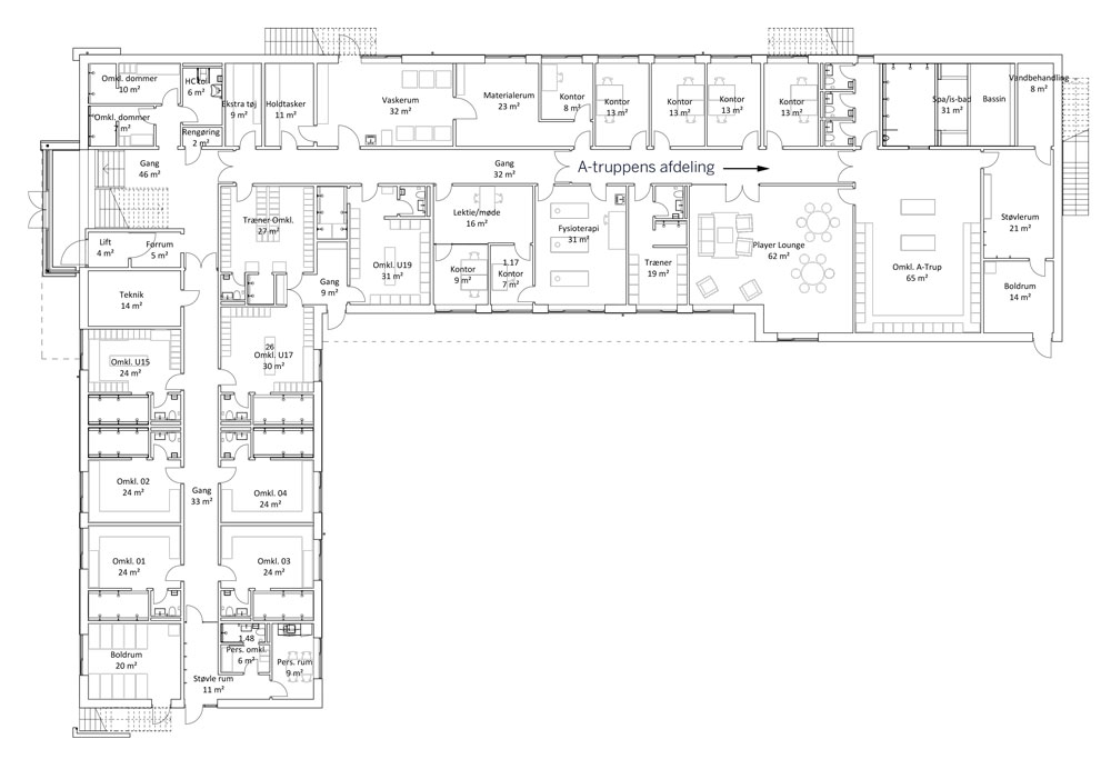
Som det fremgår af plantegningerne herunder, er der i kælderplan (baneniveau) to afdelinger - en afdeling, som spillere og trænere omkring A-truppen råder over med omklædningsrum, players lounge, trænerkontorer, fysioterapi m.m..
I den anden afdeling er der omklædningsrum for ungdomselitehold og øvrige hold i amatørafdelingen, dommeromklædning, vaskeri og øvrige lokaler med fællesfunktioner.
I stueplan er der i den ene fløj fittnessrum på 170 m2 og kontorer til den sportslige administration samt talenttrænere. I den anden fløj finder man et 190 m2 stor café, køkken, mødelokaler, auditorium m.m. Fra caféen er der udgang til en kæmpe terrasse, hvorfra man har udsigt til bane 1.
Det nye klubhus, der skal stå færdigt 1. april 2018, er tegnet af AART architects, entreprenør er Raundahl& Moesby, og ingeniørberegningerne står Søren Jensen for.
Baneplan (klik her for at se plantegningen i stor størrelse)

Stueplan (klik her for at se plantegningen i stor størrelse)

